- ホーム

- エスリード鴻池・/3階/2498.0万円
- 物件番号
- 14900
- 価格
- 2,498万円
- 間取り
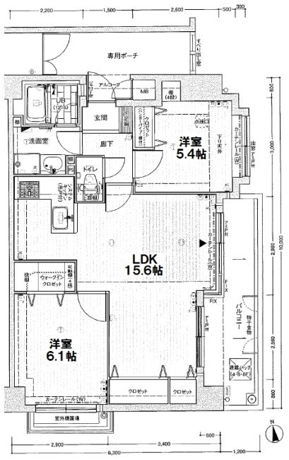
- 2LDK
- 専有面積
- 61.33m2
- 住所東大阪市鴻池町2丁目1-32
- JR学研都市線 『鴻池新田』 駅 徒歩 6分
- ◆ 専用ポーチは独立した空間が得られる半面、門扉の開け閉めは面倒かもしれません。廊下が短く、ロスが少ない設計です。全室、エアコンが設置可能です。収納は各部屋しっかり備わっています。リフォームで、和室をリビングに繋げて広げることも可能です。リビングには床暖房があり、冬は足元からポカポカ温かいですよ。3LDKから2LDKにしたことで、リビングが広がり、使い勝手が良くなりました。
住宅ローンシミュレーション!
このマンションをローンで買うと
月々 円です
借入期間 年/金利 %
↑数字を入替えて計算してみましょう↑
※頭金・ボーナス払い0円での返済金額です。変動店頭金利2.475%から1.85%優遇で表示。お客様のご要件により金利優遇や借入期間は異なります。
室内動画
物件概要
| マンション名 | エスリード鴻池・ | ||
|---|---|---|---|
| 物件番号 | Bm14900 | 価格 | 2,498万円 |
| 交 通 | JR学研都市線 『鴻池新田』 駅 徒歩 6分 | ||
| 住 所 | 東大阪市 鴻池町2丁目1-32 | 建築年月 | H12 年1 月 |
| 部屋の階数 | 8 階建の3 階部分 | 建物構造 | 鉄筋コンクリート造 |
| 専有面積 | 61.33 m2 ( 18.71坪 ) | 総戸数 | 21 戸 |
| 間取り | 2LDK | 地域・地区 | 近隣商業地域 準防火地域 |
| 間取り詳細 | 管理会社 | エスリード建物管理 | |
| バルコニーの向き | 東 | 管理形態 | 通勤C 週4日以内 |
| バルコニー面積 | 9.73 m2 | 事業主(売主) | 日本エスリード |
| 管理費 | 15100 円 | 施主会社 | モリタ建設 |
| 修繕積立費 | 19100 円 | 駐車場・空状況 | 空無 |
| 部屋の現況 | 空室(見学可) | 駐車場月額 | 円 |
| 引渡し時期 | 相談 | ペット飼育 | 不可 |
| 学校区 | 小学校:鴻池東 中学校:盾津 |
取引態様 | 仲介 |
| そんちょうさんの ズバコメ |
◆ 専用ポーチは独立した空間が得られる半面、門扉の開け閉めは面倒かもしれません。廊下が短く、ロスが少ない設計です。全室、エアコンが設置可能です。収納は各部屋しっかり備わっています。リフォームで、和室をリビングに繋げて広げることも可能です。リビングには床暖房があり、冬は足元からポカポカ温かいですよ。3LDKから2LDKにしたことで、リビングが広がり、使い勝手が良くなりました。 | ||
| マンション設備 | 電気 / 上水道 / 下水道 / 都市ガス / 防犯カメラ設置 / ゴミ置き場 / 1階に住居なし / 自転車置場 / オートロック / 管理人室 / 集合ポスト / エレベーター / ペット飼育不可 / インターネット利用可 / エスリード鴻池・のカタログを見る | ||
| 室内設備 | 玄関ポーチ・アルコープ / 玄関門扉付 / 下駄箱 / 網戸 / クローゼット / ウォークインクローゼット / フローリング / クッションフロア / 床暖房 / インターホン / エアコンコンセント / カーテンレール / コンセント / テレビコンセント / 電話差し込み / 分電盤 / 手洗付便器 / タオル掛け / ペーパーホルダー / 温水洗浄便座 / トイレ換気扇 / 洗濯機用防水パン / 洗面化粧台 / 三面鏡 / 浴室乾燥暖房機 / システムキッチン / カウンター付キッチン / 人造大理石カウンター / ガス3口コンロ / レンジフード / 食器洗い乾燥機 / 給湯器 / バルコニー / 物干金物 / | ||
| リフォーム履歴 | ◎令和7年7月 システムキッチン・ユニットバス・洗面化粧台・洗濯防水パン・トイレ建具を新調、クロス貼替、フローリング貼替、クッションフロア貼替、間取変更3LDK⇒2LDK | ||
| 補足・備考 | アルコープ1.12㎡、専用ポーチ6.52㎡ ◆価格変更:2,598万円→2,498万円 | ||
| 情報更新日 | 2025/12/27 | ||
◎不動産情報サイトや他社のホームページ掲載物件でもお気軽にご相談ください。
【ズバ評点】について
評点はそんちょうさんが、下記の5項目を各20点合計100点満点で採点しています。
【価格】 過去の売却事例や近隣相場と比較し安いと加点され、高いと減点
【間取り】 広さや設備、収納、使い勝手など10項目で採点
【管理費】 管理費は安いと加点されますが、修繕積立金は安いと維持費が不足するので減点
【リフォーム費用】 手直しが必要ない状態まで掛かる費用を数字に置き換え採点
【階数と向き】 上層階で南向きは加点され、低層階の東・西・北の順に減点
【分数】について
分数は出来る限りマンションの玄関から駅の改札や出入り口に近いところで測っています。
よってパンフレットなどの表示分数と異なる場合があります。尚、徒歩で歩くことを基準にしているので、
車の通行が困難な場所もありました。坂道や階段は分数に考慮していません。
【管理形態】について
【住込み】 通常週5日以上の勤務で管理員がマンション内に居住
【通勤A/24時間】 24時間交代で管理員又は警備員が勤務
【通勤B/週5日以上】 1週間の内5日以上管理員が通勤勤務
【通勤C/週4日以内】 1週間の内4日以内管理員が通勤勤務
【通勤】 管理員が通勤勤務
【巡回】 指定日に一定時間管理員が通勤勤務
【無人】 管理員の勤務はなく清掃業務のみやカメラ等でセキュリティ管理
【自主管理】 管理業者に委託せず業務は住民で分担。保守点検は専門業者に委託
【勤務時間】 9時~17時が一般で、午前中のみや曜日よって時間が異なることもあります。
【ペット】について
将来飼育可が不可に、不可が可に替わることがあります。
【設備料金】について
駐車場、バイク、自転車置場の台数や料金は変わることがあります。
現地地図
位置情報に関するご注意:現在位置情報は精査中の為、正確ではない場合があります。あくまで参考程度の情報となります。
掲載されている物件データが現況と異なる場合は現況を優先します。
この物件を見た方は以下の物件もチェックしています。
未公開物件を見るには?
私達があなたを身内のように対応致します!お気軽にご相談ください。
〒 5 7 7 - 0 8 0 1 大 阪 府 東 大 阪 市 小 阪 1 丁 目 5 - 1 3
TEL 0 6 - 6 7 4 3 - 7 4 0 0 FAX 0 6 - 6 7 4 3 - 7 5 0 0




















































